









Квартира с 1 спальней и гостиной, расположена в секторе Буюканы, на ул. Бисеричий.
Жилой комплекс Hora Village.
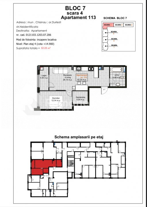
Общая площадь: 52,25 м²
Планировка: спальня, кухня, совмещённая с гостиной, санузел, гардеробная, балкон.
Характеристики:
- автономное отопление;
- панорамные окна;
- дом из красного кирпича;
- двор с ограниченным доступом и видеонаблюдением;
- расположение рядом с парком Valea Morilor.
Территория комплекса оборудована различными коммерческими объектами, частным детским садом, множеством детских и спортивных площадок, парком с фонтаном и пешеходной аллеей.
В непосредственной близости находятся: банки, салоны красоты, супермаркеты, учебные заведения и др.
Первый взнос: 21.450 €
Осталось выплатить: 13 ежеквартальных платежей по 4.498,41 € каждый
Цена за м²: 1.480 €
Общая стоимость: 79.900 €
Prețul:
* Datele financiare sunt aproximative și pot varia în funcție de instituția financiară.