




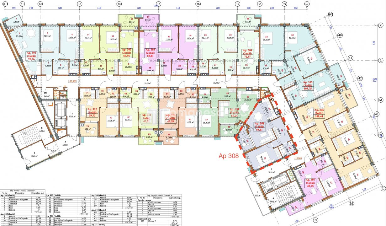
Квартира с 1 комнатой + гостиная | 55,11 м² | Этаж 3/12
Предлагаем к продаже современную квартиру с 1 комнатой + гостиной, расположенную на 3 этаже из 12.
Жилой комплекс Solomon Grenoble Residence — это современный проект в экологически чистой зеленой зоне сектора Ботаника.
Преимущества:
Просторная и грамотно спланированная площадь.
Новая инфраструктура: школа, детский сад, молодежный центр, торговые площади в шаговой доступности.
Высокое качество строительства и используемых материалов.
Инновационный фасад с теплоизоляцией из минеральной ваты и керамогранитными отделками, обеспечивающий срок службы более 50 лет и минимальные эксплуатационные расходы.
Гибкие условия финансирования: покупка возможна с ипотечным кредитом или через программу Prima Casă.
Сдача в эксплуатацию: всего через несколько месяцев.
Жилой комплекс Solomon Grenoble Residence сочетает городской комфорт с гармонией природы, являясь идеальным выбором для современной, безопасной и долговечной квартиры.
Prețul:
* Datele financiare sunt aproximative și pot varia în funcție de instituția financiară.