





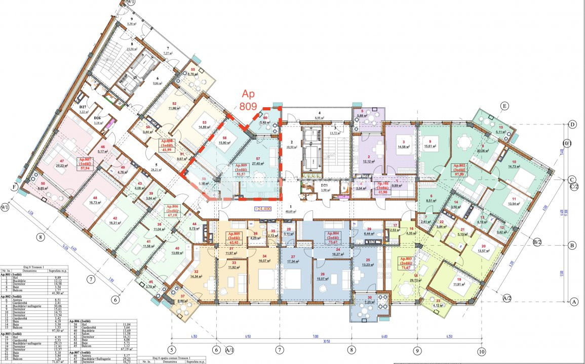
Квартира 1 комната + гостиная | 51,53 м² | Этаж 8/12
Предлагаем к продаже современную квартиру с 1 комнатой и гостиной, расположенную на 8 этаже из 12 в жилом комплексе Solomon Grenoble Residence, который находится в зелёной и экологически чистой зоне сектора Ботаника.
Преимущества:
Просторная и функциональная планировка.
Новая инфраструктура: школа, детский сад, центр для молодежи, торговые площади в шаговой доступности.
Высокое качество строительства и используемых материалов.
Инновационный фасад с минеральной ватой и отделкой керамогранитом, обеспечивающий долговечность более 50 лет и минимальные эксплуатационные расходы.
Гибкая система финансирования: покупка возможна через ипотечный кредит или программу «Первая квартира».
Сдача в эксплуатацию: всего через несколько месяцев.
Жилой комплекс Solomon Grenoble Residence сочетает городской комфорт с гармонией природы, являясь идеальным выбором для современной, безопасной и долговечной квартиры.
Prețul:
* Datele financiare sunt aproximative și pot varia în funcție de instituția financiară.