Imagine 77

Apartament cu 2 camere, bloc nou, dat în exploatare, Durlești.

ID: P20486 Durlesti, Centru 27
99.100€
Descriere
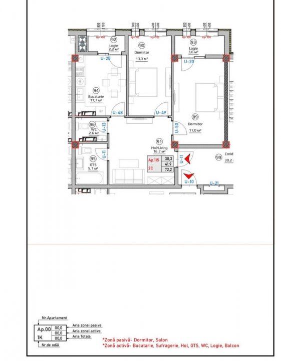
Spre vânzare apartament în variantă albă, amplasat în noul complex locativ Select New Town, Durlești – bloc dat în exploatare!

Vă propunem un apartament spațios cu 2 camere, cu suprafața totală de 73 m², situat la etajul 6 din 9, într-un imobil modern construit conform standardelor actuale de calitate și eficiență energetică.

Compartimentare reușită:
2 camere;
bucătărie;
2 blocuri sanitare;
balcon.

Apartamentul se prezintă în variantă albă, oferind libertatea de a amenaja interiorul după propriul gust.

Caracteristici și facilități ale complexului:
carcas monolit din beton armat;
fațadă termoizolată cu polistiren și vată minerală în jurul geamurilor;
construcție din cărămidă Brikston;
încălzire autonomă;
geamuri termopan;
ascensor silențios cu acces inclusiv la parcarea subterană;
parcare subterană;
interfon și conexiuni telefon/TV/internet prin fibră optică;
contoare individuale la gaz, electricitate și apă;
sistem de supraveghere video.

Imobilul este amplasat într-o zonă în continuă dezvoltare, cu acces rapid către oraș și infrastructură modernă.

Apartamentul este eligibil pentru Programul Prima Casă și Ipotecă.
Caracteristici
  • ID:P20486
  • Nr. camere:2
  • S. construita:73.00 mp
  • Etaj:Etaj 6
  • Nr. bucatarii:1
  • Nr. bai:2
  • Nr. balcoane:1
  • Regim inaltime:P+9
  • Orientare:Nord
Curent
Apa
Canalizare
Gaz
Centrala proprie
Localizare
Talpău Victor
Senior Partner
Contacteaza-ma
Proprietati similare
Imagine 18314
0% comision
Vanzare apartament cu 1 cameră, Telecentru, str. Ialoveni.
Chisinau, Telecentru 99.900€
1 Camera Etaj 2/9
Imagine 18312
0% comision
Vanzare apartament cu 2 camere, bloc nou, dat în exploatare, Durlești.
Durlesti, Centru 98.900€
2 Camere Etaj 2/9
Imagine 18263
0% comision
Apartament seria 143 în centrul Chisinaului, 5min de la Unic!
Chisinau, Centru 109.900€
2 Camere Etaj 9/10
Imagine 18225
0% comision
Apartament cu 3 camere, seria 143, Ciocana, bd. Mircea cel Batran.
Chisinau, Ciocana 99.000€
3 Camere Etaj 4/9
Imagine 18113
0% comision
Apartament de vânzare – sectorul Ciocana, bd. Mircea cel Bătrîn
Chisinau, Ciocana 98.000€
2 Camere Etaj 2/9
Imagine 18042
0% comision
Vanzare apartament cu 2 camere, Botanica lângă Valea Trandafirilor!
Chisinau, Botanica 90.900€
2 Camere Etaj 3/5