






Vânzare spațiu comercial – Ecocity Residence
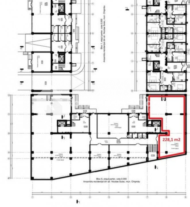
Se oferă spre vânzare un spațiu comercial la parterul blocului locativ Ecocity Residence, dat în exploatare, cu 3 intrări separate, ideal pentru diverse activități comerciale sau de servicii.
Avantaje ale spațiului:
Parcare pentru clienți chiar în fața spațiului, facilitând accesul rapid;
Amplasare excelentă pe str. Milescu Spătaru, cu vizibilitate ridicată pentru trecători și trafic auto;
Flux constant de clienți datorită proximității cu companii-ancora, precum Fish-Market și viitorul Supermarket Nr.1;
Flexibilitate în amenajare, cu posibilitatea de divizare în 3 încăperi separate, potrivită pentru mai multe activități simultane.
Acest spațiu reprezintă o oportunitate excelentă de investiție, atât pentru afaceri noi, cât și pentru extinderea celor existente.
Prețul:
* Datele financiare sunt aproximative și pot varia în funcție de instituția financiară.