







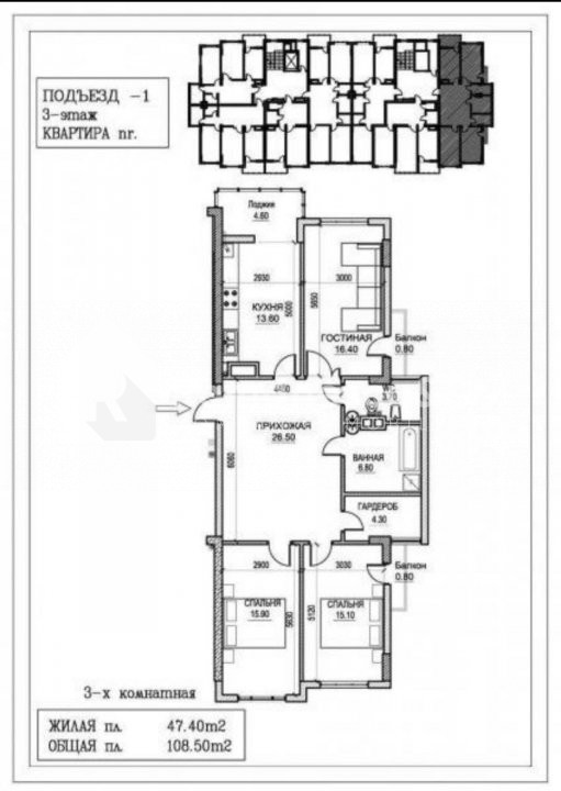
Apartament cu 3 camere și living cu o suprafață de 108 de mp, situat la etajul 4 din 9 al Complexului Ion Buzdugan, construit de către compania ExFactor.
Detaliile tehnice despre construcția clădirii:
Carcasul din beton armat oferă stabilitate și rezistență structurii.
Pereții din cărămidă roșie de la Macon SA sunt durabili și contribuie la izolarea termică și fonică a locuinței.
Izolarea termică cu vată minerală este un plus pentru eficiența energetică a clădirii.
Pardoselile izolate fonic și termic asigură un confort suplimentar.
Geamurile Salamander sunt recunoscute pentru calitatea lor, ajutând la izolarea termică și fonică.
Parcările subterane sunt foarte practice, mai ales în zonele aglomerate.
Ascensoarele moderne și silențioase care ajung inclusiv până la nivelele de parcări sunt un avantaj major pentru confortul și accesibilitatea locatarilor.
Amenajarea curții cu teren de joacă pentru copii și zone de agrement pentru adulți adaugă valoare și facilități comunității.
Prețul:
* Datele financiare sunt aproximative și pot varia în funcție de instituția financiară.