





Apartament cu 1 cameră de vânzare în Complexul Sky House - Oportunitate excelentă!
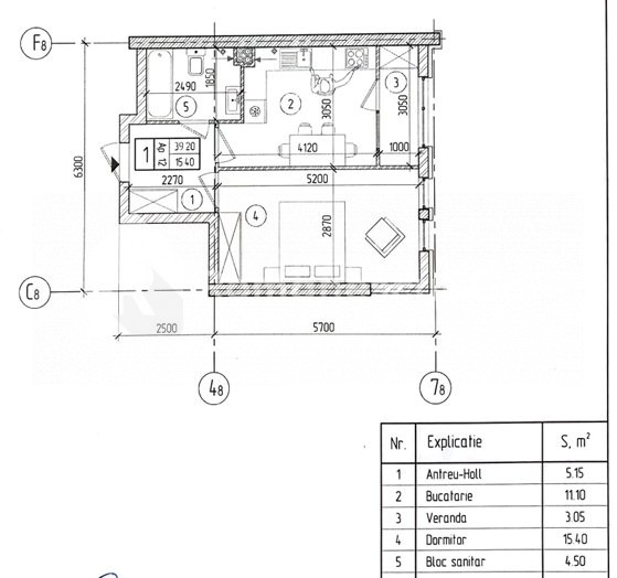
Suprafața: 39,2 mp
Etaj: 1 - Un etaj foarte comod, ideal pentru acces rapid și confort!
Locație excelentă:
Aproape de Parcul Valea Trandafirilor – un loc perfect pentru relaxare și plimbări în aer liber.
La câțiva pași de Atrium – shopping, restaurante și divertisment la îndemână!
Apartament modern, luminos și bine compartimentat, ideal pentru un cuplu sau pentru un start de viață independentă.
Zona este liniștită și oferă toate facilitățile necesare unui trai confortabil.
Caracteristicile complexului:
Încălzire autonomă (cazan pe gaz) – confort maxim, fără costuri ascunse.
Pereți din cărămidă roșie – izolație termică și fonică excelentă.
Fațada termoizolată cu vată minerală de 10 cm – eficiență energetică sporită.
Termopane Rehau cu 5 camere – izolare fonică și termică superioară.
Ascensoare silențioase – confort și liniște pentru locatari.
Parcare subterană – protecție și comoditate pentru mașina ta.
Posibilitatea de achiziționare în rate – preț diferit în funcție de opțiunea de plată aleasă.
Darea în exploatare: 2026 – o investiție pe termen lung într-o zonă centrala în continuă dezvoltare.
Nu rata ocazia de a deveni proprietar într-un complex deosebit!
Pentru mai multe detalii sau pentru a programa o vizionare, nu ezitați să ne contactați!
Prețul:
* Datele financiare sunt aproximative și pot varia în funcție de instituția financiară.